3棟 3件
-
販売中の物件
-
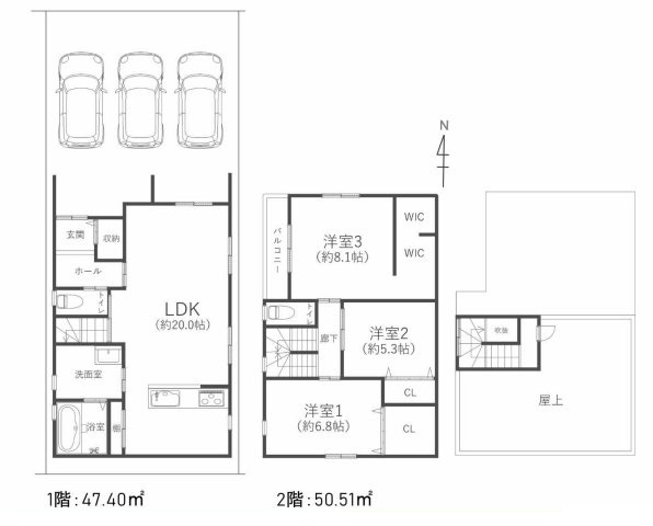
「宇治市六地蔵徳永29-4」のここがイチオシ。ゆとりのある快適なお住まいをお探しの場合は当社の4LDKの物件はいかがでしょうか。バルコニーが28.14㎡の大きさの物件です。バルコニーが2面付いています。不動産のことで確認したいことがあるなら、メール又はお電話にてご連絡ください。当社は豊富な経験と知識を持っているので、丁寧にお答えします。
販売中の部屋
-
土地面積は156.18㎡(公簿)となっております。建築条件がないため、お目当ての建築会社やハウスメーカーで、思いのままのマイホームを建てることが可能です。住みやすい空間の条件の1つに前面道路が6m以上あるところを入れてみては。不動産についてご質問があれば、どのような些細なことでもぜひお気軽に当社にお問い合わせください。専門知識と経験の豊富なスタッフがお客様の疑問にお答えいたします。
販売中の区画
建物面積が97.91㎡でご家族での生活にも十分な広さの物件はこちらです。充実の設備が好評の3,499万円の物件はこちらです。3台まで駐車可なので、たくさん車を所有している方でも安心です。不動産について何かお困りのことなどがございましたら、近鉄京都線小倉周辺の地域に強い当社スタッフまでお問い合わせください。